x
WORKS
ABOUT
CONTACT
RECRUIT
NEWS
WORKS
ABOUT
CONTACT
RECRUIT
月島ゲットー
TSUKISHIMA GHETTO
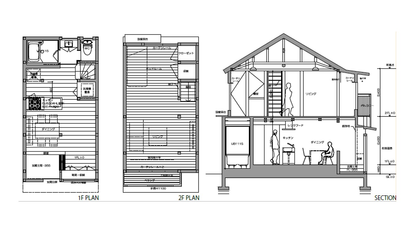
月島の西仲通商店街(もんじゃストリート)の裏路地にひっそりと軒を連ねる長屋群の一角。
関東大震災後、労働者向け住宅として建てられた間口2間、奥行き3.5間の2階建ての一般的な長屋(月島式長屋)を、単身世帯・若い夫婦向けの現代型の長屋に改修しました。
計画地 東京都月島
竣工日 2014年4月
敷地面積 32.42m²
述床面積 49.0m²(1F25.8 2F23.2)
構造 / 最高高さ / 階数 W / 6.5m / 2F
用途 長屋住宅
1坪弱の玄関土間や1畳の階段、木製サッシなどを残し、築90年の長屋の特徴を活かしながらも、押入や襖をなくし、2階の天井裏の小屋梁を見せるなど解放感のある設計としました。
ライフスタイルでも無理なく快適に過ごすことができる長屋改修のプロトタイプを追究しました。